業務内容
Nagano Sign System ナガノサインシステム
効果的なイメージ戦略の構築を目指して、豊富な実績と高い技術力を基に、企画から設計、製作、施工、メンテナンスに至るまで、トータルにサポートしています。
Nagano Design Works ナガノデザインワーク
お客様のご要望やイメージをふまえ設置環境、利用目的などを考慮したトータルサインから単独サインにおけるデザインをご提案しています。
Nagano Sign Planning ナガノサインプランニング
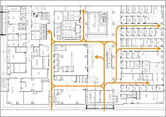
STEP1 導線の把握
対象となる建物の利用目的を把握した上で、外部、内部とも、人の流れ(導線)の把握を行います。人や車が、何の目的で、どの部分に移動して行くのか、そのパターンは何通りあるのか。
また、その中でどの部分がメインとなり、それに付随する部分がどこになるのか、などを絞り込みます。
STEP2 プロット図の作成
導線がしっかり固まった時点で、利用者をよりスムーズに目的地へ誘導するために必要なサインのリストアップを行います。
建物名表示、総合案内表示、誘導表示、各階案内表示、室名表示、ピクト表示、階数表示、他。
リストアップ後、導線に対する、利用者の視野を考慮に入れ、設定位置(プロット図の作成)、およびタイプ(平付けタイプ、突出しタイプ、自立タイプ、天吊タイプ等)の検討を行い、各サインアイテムの数量を出して行きます。
STEP3 サインデザイン・意匠図作成
設定位置、タイプを検討した後、対象となる、建物・施設の環境や利用目的を考慮に入れ、サインのデザインを行います。
デザインワークで、形状、サイズ、仕様、材質、仕上げ等を固めた時点で、アイテム別の意匠図を作成します。その際、よりイメージをつかむため、カラー図や設置イメージCGを作成する場合もあります。
この時点で、表示内容もある程度イメージとして捉えておきます。
また全体の予算出しも行います。
STEP4 製作図面の作成

